Rodriguez Villamarzo Apartment Remodel

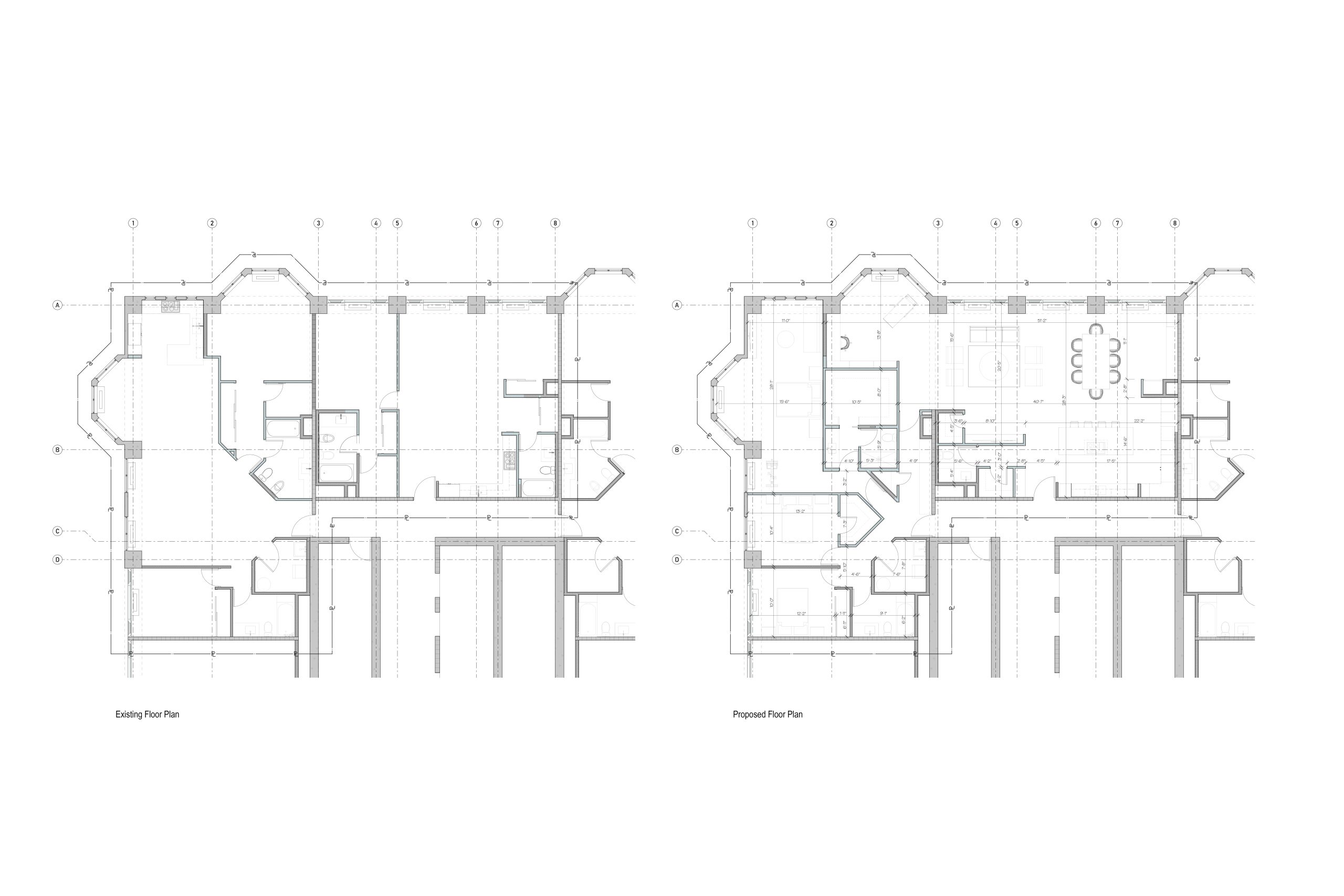
The completed project unites two formerly separate apartments—a one-bedroom unit and a two-bedroom unit—into a single, cohesive residence totalling approximately 2,287 square feet. Located on the 16th floor of Gallery Plaza Condominium, the original one-bedroom space, spanning approximately 950 square feet, faces north, capturing sweeping views of the Condado and Ocean Park skyline and the Atlantic Ocean. The adjacent two-bedroom unit, approximately 1,337 square feet, faces east, offering vistas of the Condado and Santurce urban landscape, while also sharing the north-facing ocean views.

The existing units were in good condition but retained their original finishes and cabinetry from the building’s construction circa 2004. The design introduces a new spatial configuration that resolves the disjointed layout of the combined units, establishing a clear and intentional relationship between the living areas and sleeping quarters. This reorganization was carefully executed within the constraints of the existing infrastructure, resulting in a seamless integration of the two spaces into a single, functional home.

 

Category

Dwelling

Year

2022

Location

San Juan, Puerto Rico

OUR APPROACH

WHAT WE DELIVERED

more from our portfolio

Commercial

San Juan, Puerto Rico

Institutional

San Juan, Puerto Rico

Dwelling

Guaynabo, Puerto Rico